Bedford Health Village Bedford town centre
Table top with Loft style Interior Building Decoration
Client
Bedford Borough Council
Sector
Planning & Development
Location
Bedford town centre
How we helped
Masterplanning and urban design Healthcare
@
Get in touch
PREV:
NEXT:

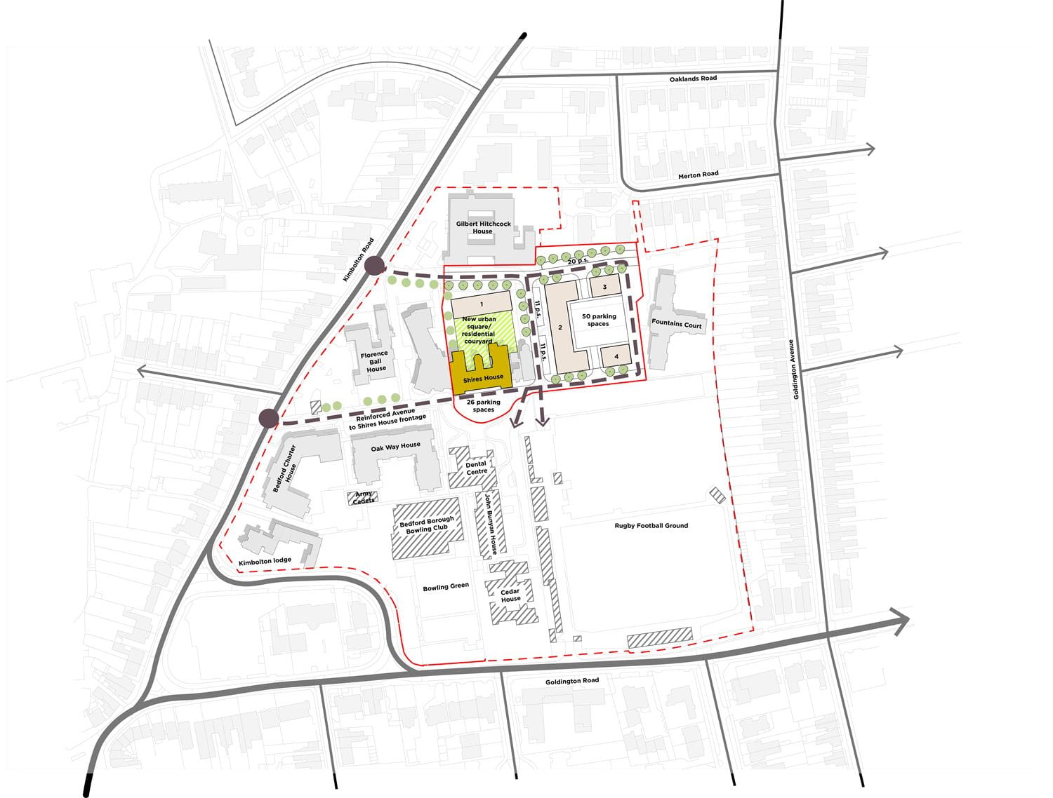
Bedford’s Health Campus is a tightly developed town centre site containing a wide range of facilities which have developed at random over time.

Bedford Health Village

Bedford Health Village

The listed 18th century House of Industry (former Workhouse); a wide range of contemporary NHS buildings; other health buildings of various ages; Bedford Rugby Club and Bedford Bowls Club.

We were commissioned by Bedford Borough Council to produce a series of masterplans exploring various development scenarios, maximising various sites’ development potential, improving circulation and car parking, landscape and way-finding across the estate. Most importantly these helped to identify future strategies for developing a more efficient campus in the future.