Units 1 & 2, Cambridge Road CB22

Units 1 & 2, Cambridge Road CB22

2,861 to 6,659 sq ft (265.8 to 618.6 sq m)

Shelford 1.7 miles
Whittlesford Parkway 1.8 miles
Cambridge 4.6 miles

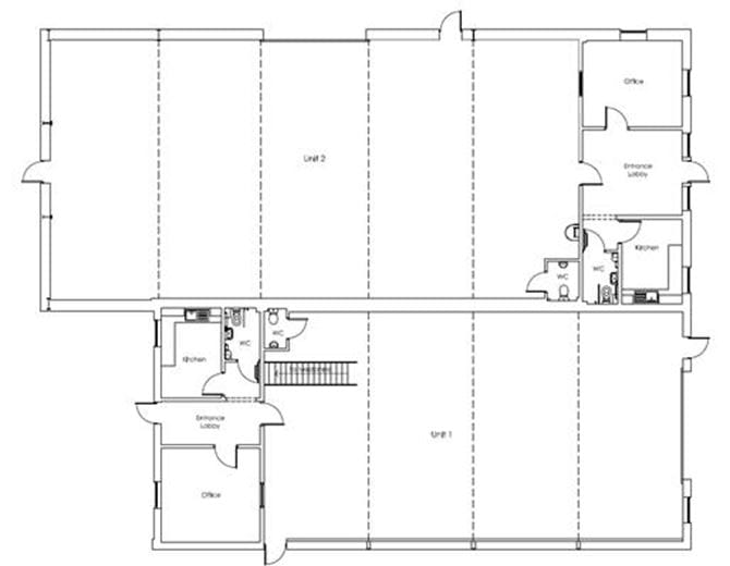
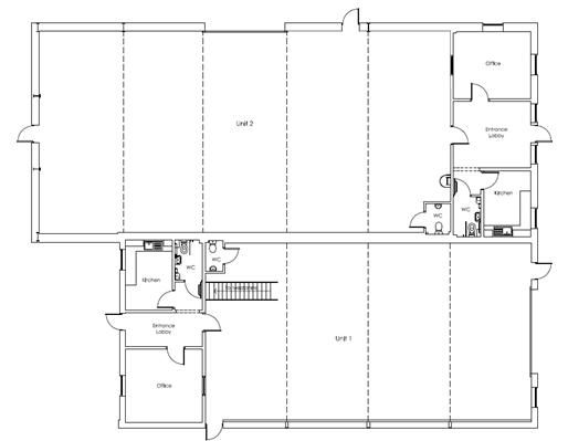
The property consists of two adjoining units constructed with steel portal frames and metal-clad elevations, featuring both pitched and skillion roofs. Each unit benefits from approximately 10% roof light coverage, an electric roller shutter door, an entrance lobby, office space, a kitchenette, and a WC. Unit 1 offers 6 parking spaces, while Unit 2 provides 8 parking spaces. The units can be leased separately or together, offering a self-contained premises.

The units are located on secure estate benefitting from an electrical access gate.

Key Features

  • Available from July 2025
  • Yard and parking provisions
  • Available separately or in conjunction
  • Unit 1: B (45) Unit 2: B (40)

Location

Deal Business Park is situated off Cambridge Road, Sawston, approximately 7 miles south of Cambridge City centre. The village of Sawston provides a range of amenities including a supermarket, building society, bakery and a range of other shops, restaurants and public houses.

Deal business park provides connectivity to Cambridge via the A1307 (15 mins) as well as the national road network via the A505 (8 mins), A11 (8 mins), A14 (10 mins) and M11 (10 mins). Rail links on the Cambridge / London Liverpool Street line are available from the nearby villages of Great Shelford and Whittlesford Parkway, as well as frequent services to London Kings Cross from Cambridge.

Terms & Conditions

Each unit will be available by way of a new FRI lease on terms to be agreed.

Key property details
Tenure
Leasehold £11.50 Per SQ Foot
Size
2,861 to 6,659 Sq Ft 265.8 to 618.6 Sq M
Type
General Industrial and Storage & Distribution Research and Labs
Carter Jonas reference
20018444
Property agent
Callum Middleton

Suggested properties

Here are a few properties you might like, but within 2 extra miles of your current search

5,400 to 165,200 Sq Ft (501.7 to 15,347.6 Sq M)
Leasehold
13,086 Sq Ft (1,215.7 Sq M)
Leasehold
44,684 Sq Ft (4,151.3 Sq M)
Leasehold
Thinking of selling?

Find out what your property is worth