Development Site At Maggs Lane, Ansford BA7

Development Site At Maggs Lane, Ansford BA7

Freehold | 0.93 acres (0.376 hectares)

A residential development site for seven dwellings located on the edge of the sought after town of Castle Cary. For sale by private treaty.

Development Site at Maggs Lane, Castle Cary, Somerset, BA7 7HB

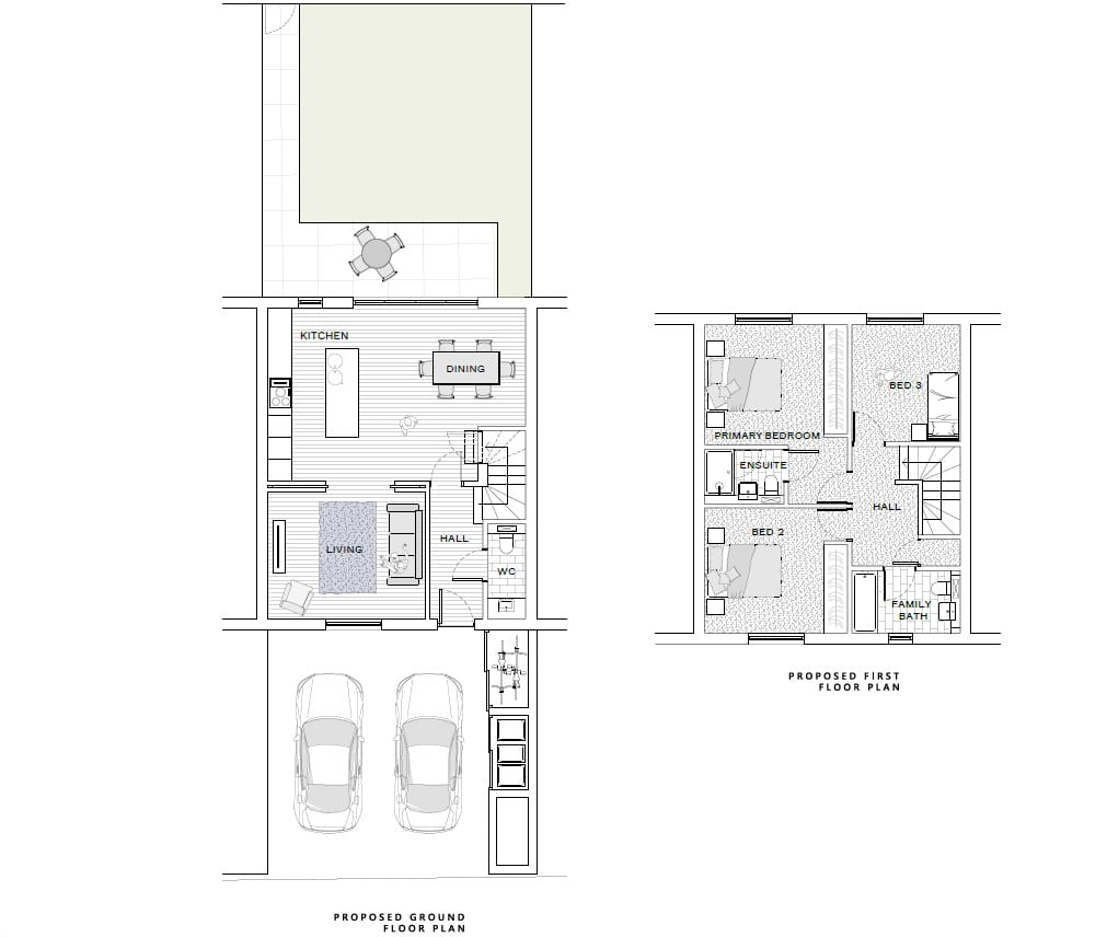
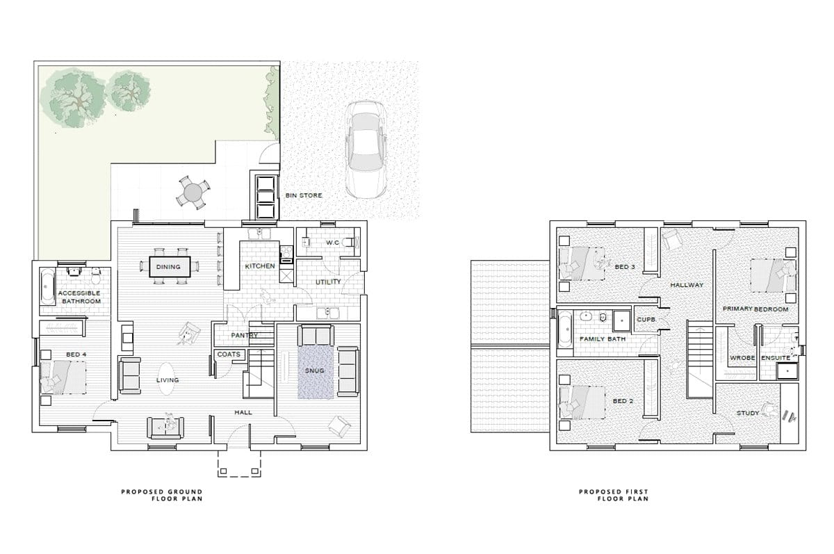
The Development Site at Maggs Lane comprises a residential development site with planning permission for four no. substantial detached dwellings (GIA of 226.57sqm each) and a terrace of three no. dwellings (GIA of 116.98sqm each) located on the edge of the sought after town of Castle Cary.

For sale by private treaty.


Location
The Site is located on the edge of the sought after town of Castle Cary. Castle Cary offers a range of traditional shops to cater for most day-to-day needs, whilst the nearby towns of Glastonbury, Street, Wells, Frome, Wincanton, Sherborne, and Yeovil are all close by and offer a wider range of shopping facilities. In addition, the larger cities/towns of Salisbury, Taunton, Bath, and Bristol are within easy reach of the site.

The renowned “Newt in Somerset” is located just outside of Castle Cary and offers substantial gardens, walks, a hotel and spa, farm shop, and restaurant.

Castle Cary has its own mainline railway station with direct trains to London Paddington, whilst the A303 is within easy reach of the site.

The area offers an excellent range of schools within both the state and independent sectors; the site is opposite Ansford Academy, whilst Castle Cary Primary School is within walking distance, and independent schools include the Sherborne and Bruton schools, Millfield, Wells Cathedral, Hazelgrove and Port Regis.


Property
The development site comprises a level pasture enclosure on the edge of Castle Cary adjoining Maggs Lane, Yeabsleys Way, and the A371.

Planning permission has been obtained for seven no. dwellings with access from Yeabsleys Way, together with associated landscaping works and parking on the site. The dwellings comprise four no. detached four-bedroom dwellings together with a terrace of three no. three-bedroom dwellings, all of local stone elevations under clay tiled rooves. The four-bedroom dwellings will offer gross internal areas of about 227 square metres with the three-bedroom dwellings offering gross internal areas of about 117 square metres.


Services
Wessex Water have confirmed that mains water and drainage services run within the roads adjacent to the site. There are also overhead mains electricity lines crossing the land. Potential purchasers should make their own enquiries to confirm the availability of service connections to the site.


Method of Sale
The property is offered for sale by private treaty with a guide price of £695,000.


Tenure and Possession
The freehold of the property is offered for sale with vacant possession available upon completion.


Planning
Planning permission was granted by Somerset Council (formerly South Somerset District Council) in September 2024 under application reference number 23/00297/FUL.


Health and Safety
Potential purchasers should take particular care when inspecting the site.


Local Authority
Somerset Council (formerly South Somerset District Council).


Viewings
Potential purchasers may view the site during reasonable daylight hours, after informing the selling agents, Carter Jonas, on 01823 428590.


Directions
Heading from Castle Cary Railway Station towards Wincanton on the A371, turn left at Ansford onto Maggs Lane. Turn right onto Yeabsleys Way. The site is located on the right-hand side.


What Three Words
///case.processor.grit

Key property details
Location
Village
Tenure
Freehold
Size of land
0.93 acres (0.376 hectares)
Carter Jonas reference
TAU240159

Suggested properties

Here are a few properties you might like, but within 2 extra miles of your current search

1,000 to 250,000 Sq Ft (92.9 to 23,225.8 Sq M)
Commercial Development & Land
1 to 35 acres (0.405 to 14.2 hectares)
Commercial Development & Land
2 to 9.2 acres (0.809 to 3.7 hectares)
Commercial Development & Land
2,305 to 11,565 Sq Ft (214.1 to 1,074.4 Sq M)
Commercial Development & Land
2.1 acres (0.85 hectares)
Commercial Development & Land
0.843 acres (0.341 hectares)
Commercial Development & Land
59.1 acres (23.9 hectares)
Commercial Development & Land
1 to 6 acres (0.405 to 2.4 hectares)
Commercial Development & Land
Thinking of selling?

Find out what your property is worth