Sturmer Road, Steeple Bumpstead CB9

Sturmer Road, Steeple Bumpstead CB9

4 Bedroom | Freehold | 0.046 acres (0.046 hectares)

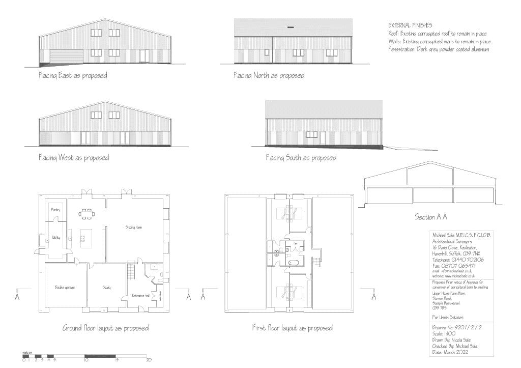
A unique opportunity to aquire this impressive barn, located on a quiet country lane and boasting open-field views, with approved planning permission for a detached 4 bedroom conversion comprising just under 5000sqft of accomodation and generous gardens.

A unique opportunity to acquire this impressive barn, located on a quiet country lane and boasting open-field views, with approved planning permission for a detached 4 bedroom conversion comprising just under 5000sqft of accomodation and generous gardens.

Location
Upper House Farm Barn is positioned on a quiet country lane, between the quintessential villages Steeple Bumpstead and Sturmer which enjoy idyllic country views and picturesque houses.
A short distance from town, and within easy reach of main roads such as A1307 and M11, there are all the amenities you would expect from a charming English village, including a pre-school,
primary school, two village pubs, a library, doctors' surgery, antiques shop, post office and general store. With a choice of excellent local secondary schools, countless opportunities for
leisurely country walks, and wonderful surrounding villages.

METHOD OF SALE
The Property is for sale by private treaty.

TENNURE AND POSSESSION
The Property is for sale freehold with vacant possession upon completion.

PLANNING
Permission for the conversion was granted by Braintree District Council in May 2022 under application reference 22/01520/COUPA.

SERVICES
Mains water and electricity are connected to the site.

HEALTH AND SAFETY
Potential purchasers must take particular care when inspecting the property and must pay attention to uneven surfaces.

VIEWINGS
Viewings are strictly by appointment with the agent Carter Jonas, on 01223 403330.

Key property details
Tenure
Freehold
Size of land
0.046 acres (0.046 hectares)
Carter Jonas reference
CNH220040

Suggested properties

Here are a few properties you might like, but within 2 extra miles of your current search

Price on Application
Development Land
Price on Application
Development Land
5.5 acres (2.2 hectares)
Commercial Development & Land
Thinking of selling?

Find out what your property is worth