Lower Weare, Axbridge BS26

Lower Weare, Axbridge BS26

5 Bedroom | Freehold | 47.2 acres (19.1 hectares)

Guide price £1,850,000
Bridgwater Road 1.5 miles
The Miners Arms 2.9 miles
Greenhill House 3 miles

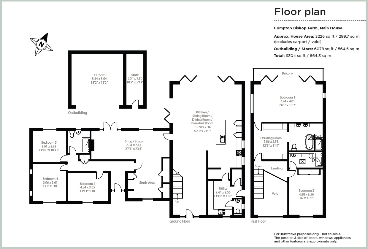
Compton Bishop Farm comprises a very well presented equestrian and livestock holding situated at the foot of the Mendip Hills, serviced by an immaculate five-bedroom farmhouse. In all, 47.17 acres. For sale by private treaty as a whole or in up to three separate lots.

Compton Bishop Farm, Lower Weare, Axbridge, Somerset, BS26 2JA

A residential and equestrian farm at the foot of the Mendip Hills National Landscape.

Compton Bishop Farm comprises a very well presented equestrian and livestock holding situated at the foot of the Mendip Hills. The property is serviced by an immaculate five-bedroom farmhouse offering accommodation of over 3,000sqft, a range of equestrian buildings, riding arena, and adjoining pastureland. Planning permission also exists on site for the creation of a further five-bedroom farmhouse.

In all extending to 47.17 acres.

For sale by private treaty as a whole or in up to three separate lots.


Location
Compton Bishop Farm is situated on the edge of the village of Cross, within the parish of Weare, at the foot of the Mendip Hills National Landscape.

Local facilities include the well regarded Weare Academy Church of England First School, public houses/restaurants, and easy access is available to a wider range of facilities in Axbridge and Cheddar.

The M5 motorway is within easy reach with Junction 22 about six miles away, which provides easy access to Bristol and Taunton, whilst railway stations are nearby in Highbridge and Weston-super-Mare. In addition, Bristol International Airport is about 11 miles away.


The Farmhouse
The farmhouse offers substantial and fully modernised accommodation comprising, on the ground floor, front door to double height glazed entrance hall with bespoke feature oak and glazed staircase and galleried landing. Open plan kitchen, dining, and sitting room with bi-folding doors to mock grass patio, garden with views across the land and to Crook Peak, fitted units and island with Silestone worktops, Neff induction hob, oven, and microwave. Utility room with external door to yard/driveway and WC and boot room off. Sitting room/’snug’/office with utilities cupboard off. Hallway with external door to garage/rear garden, three double bedrooms, and a shower room, with a boarded loft above.

On the first floor, the stairs lead to a galleried landing with double bedroom and en-suite shower room off. The principal bedroom has a large walk-in-wardrobe, ensuite bathroom with shower and bath, and bedroom with bi-folding doors to balcony also with views over the land and to Crook Peak beyond.

The house is surrounded by level lawned gardens and a gravelled driveway with a double garage and secure garden store to the rear with electric connected.

The property benefits from two road access points to the farmstead; the farmhouse has access via a metal electric sliding gate onto the gravelled driveway, whilst the farm buildings have separate access from the road via double timber gates onto a concrete hardstanding leading to the adjoining yard area.


Buildings
To the north of the house is the principal block, steel and fibre cement stable/loose housing building which provides five no. stables, an adjoining covered loose housing yard (formerly containing further American-style stables, which have been removed, but could easily be reinstated) with tack room and secure store off, WC and sink, and adjoining workshop and store. Permission exists for the use of this building for no more than 10 horses, partly for personal use, and for livery accommodation.

In addition, planning permission has been granted for the conversion and extension of this building to provide a detached dwelling. The proposed accommodation will comprise front door with entrance hall with cloak room and WC off, to full height open-plan kitchen, dining, and sitting room with snug/study off, utility room, boot room and plant room. Two double bedrooms, both with en-suite shower rooms. On the first floor, principal bedroom with dressing room and en-suite shower room, further double bedroom with en-suite shower room, and double bedroom with family bathroom. Alternatively, planning permission exists for the demolition of this building and erection of a self-build dwelling on the site of the riding arena.

In addition to the block building, there is a three bay Dutch barn with three bay and two bay lean-tos off each side and an adjoining one bay workshop off to the rear.

In addition to the buildings, there is a 40m x 20m riding arena adjoining the buildings together with a useful hardstanding. The arena has a wood fibre surface with herringbone drainage beneath and is enclosed by a post and rail fence.


The Land
The land offered for sale as part of Lot 1 comprises the level pasture field to the west of the farmhouse and farm buildings. In all, Lot 1 extends to 8.71 acres. The land benefits from access via a stone track running from the farmstead. Lot 1 could be purchased with either the whole, or part, of Lot 2, or Lot 3, to provide further land as required.


Lot 2
Lot 2 comprises the three level interconnecting pasture fields to the south and west of Lot 1 and extends in all to 32.60 acres. Access is available from the road on the eastern boundary and a separate mains water supply has been connected to service the land.


Lot 3
Lot 3 comprises two level pasture paddocks running along the northern boundary of the farm adjoining the river.

Access is available from the gate to the highway along the eastern boundary and a separate mains water supply has been connected to service the land.


Method of Sale
The property is offered for sale by private treaty as a whole or in up to three separate lots.


Tenure & Possession
The freehold of the property is offered for sale with vacant possession available upon completion.


Planning
Planning permission was granted in February 2024 for the conversion of the principal block building to a five-bedroom dwelling under application reference 49/23/00007.

Alternatively, planning permission was granted in February 2025 for the demolition of the block building and erection of a selfbuild dwelling on the site of the riding arena.


Services
The property is serviced by mains electricity and water, with private drainage. There is a three-phase electricity supply to the farm buildings, with a separate singlephase supply to the house. There is oil-fired central heating (from a boiler installed in 2017) in the farmhouse comprising underfloor heating in the two-storey part, and radiators in the single-storey part. Lots 2 and 3 have the benefit of separate mains water supplies connected.


Wayleaves Easements & Rights of Way
There is a public footpath running along the northern boundary of the farm within Lot 3.


EPC Ratings
Compton Bishop Farmhouse has an EPC rating of D.


Health & Safety
Potential purchasers should take particular care when inspecting the property being conscious of livestock and machinery movements, particularly in and around the farm buildings.


Local Authority Somerset Council
www.somerset.gov.uk


Viewings
Viewings are by appointment with the vendor’s sole agents, Carter Jonas, on 01823 428590.


Directions
From Junction 22 of the M5 motorway, take the A38 exit to Burnham-on-Sea/Highbridge. At the next roundabout, take the third exit onto Bristol Road/the A38. At East Brent Roundabout, take the second exit and stay on Bristol Road/the A38. After about four miles, turn left onto the Old Coach Rd, signed Loxton, Compton Bishop, Cross, and the Webbington Hotel.

The farm will be found on the left-hand side shortly before the bridge over the river on the edge of the village of Cross.


What Three Words
multiples.internal.fairness

The next steps...

Before making an offer on a property you will want to consider your financial situation, your income and outgoings.

Will you finance the purchase of your next property from the sale of an existing property which can put you in a chain, arrange a mortgage through your bank or buy the property outright.

To help you finance your next property purchase, we have a long established relationship with an independent mortgage broker who can discuss your situation with you.

Remember that having a 'mortgage decision in principle' can make you a more attractive buyer when you make an offer on a property. Contact our mortgage advisers for free, no obligation and impartial advice.

Some advantages of a broker are:

  • They do all the legwork for you, working on your behalf with the lender
  • They compare wholesale mortgage rates from a large number of banks and lenders all at once
  • Their wholesale interest rates can be lower than retail (bank branch) interest rates
  • They offer more loan options because they work with numerous banks and lenders
  • They can finance tricky deals because of their knowledge and various lending partners
  • They are typically easier to get in contact with, and are less bureaucratic.

However advantages of working with your bank are:

  • You may be able to build off an existing relationship (and gain discounts if you have a checking or savings account)
  • You may already know the banker who will handle your mortgage
  • Banks may be more accountable than a smaller shop
  • They may offer lower interest rates in some cases
  • Their ability to add mortgage to existing banking profile and make automatic payments from linked account.

When you see a property you are interested in on our website, call us 24/7 to arrange a viewing. Or if you prefer, get in touch via our website and we will call you back to find a time to view the property that suits you.

Once you’ve found a property you want to buy, it’s time to make an offer. A bit of negotiation is to be expected, however don't offer so little that you end up in a lengthy negotiation process, as you might lose the property altogether if someone else makes a higher bid.

If other offers have been made on a property we aren't legally able to tell you what they are, but we may indicate if they were close to the asking price.

If you have a property to sell, why not see how we can help you.

Or if you’re considering letting your property, we can take the stress out of managing your rental, and our award winning lettings team offer a service that can be tailored to your needs.

Combined with nearly 170 years of experience and one of the highest customer satisfaction scores in the industry, Carter Jonas is the perfect property partner.

Why not book a free, no obligation valuation of your property and find out how Carter Jonas can help you make your next move.

Key property details
Property type
House Farm
Tenure
Freehold
Total land
47.2 acres (19.1 hectares)
Carter Jonas reference
TAU250062

Suggested properties

Here are a few properties you might like, but within 2 extra miles of your current search

Guide price £385,000 0.96 acres (0.388 hectares)
Agricultural
Guide price £45,000 2.8 acres (1.1 hectares)
Agricultural
Guide price £90,000 14.3 acres (5.8 hectares)
Agricultural
Guide price £80,000 12 acres (4.8 hectares)
Agricultural
Guide price £450,000 0.96 acres (0.388 hectares)
Agricultural
Guide price £400,000 1.2 acres (0.498 hectares)
Agricultural
Guide price £100,000 15.9 acres (6.4 hectares)
Agricultural
Guide price £3,750,000 173.8 acres (70.3 hectares)
Agricultural
Guide price £1,375,000 8.7 acres (3.5 hectares)
Agricultural
Thinking of selling?

Find out what your property is worth