Monkwood, Bridport DT6

Monkwood, Bridport DT6

7 Bedroom | Freehold | Outbuildings | 86.6 acres (35 hectares)

Guide price £2,000,000
The Fire Station 3 miles
Red Lion 3.2 miles
West Street 4.2 miles

A private residential, livestock and equestrian holding serviced by a south facing 7-bedroom farmhouse and a range of both traditional and modern farm buildings, all lying centrally within the holding at the end of a long, private drive. In all, extending to 86.58 acres.

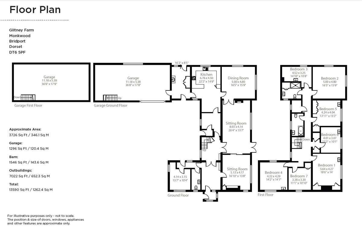
Glitney Farm, Monkwood, Bridport, Dorset, DT6 5PF

A private residential, livestock and equestrian holding located in a particularly attractive part of West Dorset.

The farm is serviced by a south facing 7-bedroom farmhouse and a range of both traditional and modern farm buildings, all lying centrally within the holding at the end of a long, private drive.

The farm offers a wide range of agricultural, leisure or biodiversity opportunities.

In all, extending to 86.58 acres.

For sale by private treaty as a whole.


The Property
Glitney Farm comprises a most attractive and private residential holding, set in a secluded position in a particularly attractive part of West Dorset.

The house and farm buildings lie centrally within the farm at the end of a long, private drive, enjoying views across its own land to the south and surrounded by good-sized, manageable enclosures laid to pasture with additional parcels of woodland and a lake.

The traditional barns offer potential for a variety of alternative uses, subject to consent with the modern farm buildings, ideal to service a range of agricultural or equestrian interests.

In all, the farm comprises some 86.58 acres and lies in an area of high amenity value, offering privacy, sporting potential and the opportunity to develop a wide range of biodiversity.


Location
Glitney Farm is situated a short distance from the village of Monkwood in the heart of the Marshwood Vale and the Dorset National Landscape (Area of Outstanding Natural Beauty) yet is only 6 miles from the world-famous Jurassic coastline at Chideock.

Stoke Abbott offers the usual range of facilities including a public house, church, Post Office and village hall.

Charmouth and Bridport are about 6.5 miles from the property, both of which offer a wider range of shopping and recreational facilities. Lyme Regis is also within easy reach.

There are regular train services from Crewkerne station. Bournemouth International and Exeter airports are both less than an hour away. There are an excellent range of schools, both in the public and private sectors in the locality including Perrott Hill, The Sir John Colfox Academy in Bridport, The Woodroffe School in Lyme Regis, Thomas Hardye School in Dorchester, the Sherborne schools, Bryanston, Canford School, Milton Abbey, Leweston School and Port Regis.


The Farmhouse
The farmhouse, originally constructed of ham stone walls under a thatched roof was, at a later date, extended with the extensions constructed of ham stone walls under a tiled roof.

The property is laid out in a U-shape with the original thatched elevations to the west and south and the later additions offering north and east views.

The house, which is now in need of modernisation, and some renovation, offers family accommodation comprising on the ground floor of kitchen with door leading to dining room, original drawing room with oak, fireplace, exposed wooden beams and patio doors, sitting room with a large ham stone inglenook fireplace and open fire, front hall, office, inner hall and service rooms to the rear.

On the first floor, there are 7-bedrooms and two family bathrooms.

The farmhouse is approached from the farm drive that leads to a circular turning area and extensive parking. Situated to the south and east of the house is an attractive lawned garden with a disused swimming pool and Ha-Ha, all overlooking the adjoining farmland.


Farm Buildings
Situated to the north of the farmhouse is a range of traditional and modern farm buildings, many of which may be capable of conversion into numerous alternative uses, subject to obtaining the appropriate consents.


The Land
The land, which surrounds the farmhouse and farm buildings, comprises a ring fence block of gently sloping pasture.

Access to the farm is enjoyed off Monkwood Lane which lies along the western boundary. The eastern boundary is bordered by an attractive watercourse and a belt of amenity woodland.

The northern part of the farm comprises steeper pasture with some amenity woodland and an attractive lake.


Method of Sale
The farm is offered for sale by private treaty as a whole.

Tenure & Possession
Vacant possession is available upon completion.

Services
The farmhouse is connected to mains electricity, mains water and is serviced by a private drainage system.

Health & Safety
Potential purchasers are required to take particular care when inspecting the property. It is recommended to wear supportive footwear for viewings. Potential purchasers are advised to be conscious of potentially uneven and slippery ground surfaces.

Sporting, Timber & Mineral Rights
Included within the sale in so far as they are available.

Wayleaves, Easements, & Rights of Way
The property is being sold subject to and with the benefit of all rights including; rights of way, whether public or private, light, sport, drainage, water and electricity supplies and other rights and obligations, easements and quasieasements and restrictive covenants and all existing proposed wayleaves for masts, pylons, stays, cables, drains, water and gas and other pipes whether referred to in these particulars or not. In particular it is noted that a bridleway and two footpaths cross the farm. Further information is available from the agents.

EPC Ratings
Rated G.

Council Tax
Band G.

Local Authority
Dorset Council

Viewings
By prior appointment with the Vendors’ agents, Carter Jonas 01823 428 590.

Directions
From Bridport, head north on the B3162. After 5 miles, turn left signed to Blackney/Shave Cross. Stay on this lane for about 1.2 miles and the entrance to the property will be found on the left hand side.

What Three Words
/// pegs.talked.snapped

The next steps...

Before making an offer on a property you will want to consider your financial situation, your income and outgoings.

Will you finance the purchase of your next property from the sale of an existing property which can put you in a chain, arrange a mortgage through your bank or buy the property outright.

To help you finance your next property purchase, we have a long established relationship with an independent mortgage broker who can discuss your situation with you.

Remember that having a 'mortgage decision in principle' can make you a more attractive buyer when you make an offer on a property. Contact our mortgage advisers for free, no obligation and impartial advice.

Some advantages of a broker are:

  • They do all the legwork for you, working on your behalf with the lender
  • They compare wholesale mortgage rates from a large number of banks and lenders all at once
  • Their wholesale interest rates can be lower than retail (bank branch) interest rates
  • They offer more loan options because they work with numerous banks and lenders
  • They can finance tricky deals because of their knowledge and various lending partners
  • They are typically easier to get in contact with, and are less bureaucratic.

However advantages of working with your bank are:

  • You may be able to build off an existing relationship (and gain discounts if you have a checking or savings account)
  • You may already know the banker who will handle your mortgage
  • Banks may be more accountable than a smaller shop
  • They may offer lower interest rates in some cases
  • Their ability to add mortgage to existing banking profile and make automatic payments from linked account.

When you see a property you are interested in on our website, call us 24/7 to arrange a viewing. Or if you prefer, get in touch via our website and we will call you back to find a time to view the property that suits you.

Once you’ve found a property you want to buy, it’s time to make an offer. A bit of negotiation is to be expected, however don't offer so little that you end up in a lengthy negotiation process, as you might lose the property altogether if someone else makes a higher bid.

If other offers have been made on a property we aren't legally able to tell you what they are, but we may indicate if they were close to the asking price.

If you have a property to sell, why not see how we can help you.

Or if you’re considering letting your property, we can take the stress out of managing your rental, and our award winning lettings team offer a service that can be tailored to your needs.

Combined with nearly 170 years of experience and one of the highest customer satisfaction scores in the industry, Carter Jonas is the perfect property partner.

Why not book a free, no obligation valuation of your property and find out how Carter Jonas can help you make your next move.

Key property details
Additional attributes
Outbuildings
Property type
Detached House Farm
Tenure
Freehold
Total land
86.6 acres (35 hectares)
Carter Jonas reference
TAU240124

Suggested properties

Here are a few properties you might like, but within 2 extra miles of your current search

Guide price £200,000 25.5 acres (10.3 hectares)
Agricultural
Guide price £3,000,000 227 acres (91.9 hectares)
Agricultural
Guide price £125,000 11.2 acres (4.5 hectares)
Agricultural
Guide price £225,000 13 acres (5.3 hectares)
Agricultural
Guide price £850,000 86.1 acres (34.8 hectares)
Agricultural
Guide price £3,900,000 276.9 acres (112.1 hectares)
Agricultural
Guide price £1,325,000 43.4 acres (17.6 hectares)
Agricultural
Guide price £425,000 46.4 acres (18.8 hectares)
Agricultural
Guide price £625,000 74.3 acres (30.1 hectares)
Agricultural
Guide price £3,700,000 258 acres (104.4 hectares)
Agricultural
Thinking of selling?

Find out what your property is worth