Llithfaen, Pwllheli LL53

Llithfaen, Pwllheli LL53

Outbuildings | 24.6 acres (10 hectares)

Asking price £625,000
Pwllheli 4.2 miles
Abererch 4.4 miles
Eglwys 3.3 miles

An attractive lifestyle farm located on the Llyn Peninsula extending in total to 24.62 acres.

An attractive lifestyle farm located on the Llyn Peninsula extending in total to 24.62 acres.
A unique opportunity to purchase a small agricultural holding situated in an attractive rural location with fine views over the surrounding Llyn Peninsula countryside and Tre Ceiri hills.

Rhydau Gloewon comprises of a detached three bedroom farmhouse which has recently been renovated, a range of traditional farm buildings along with approximately 24 acres of productive farmland.

In all extending to 24.62 acres.

For sale by private treaty as a whole.

Location
Rhydau Gloewon occupies a pleasant rural location within a short distance of the village of Llithfaen. The market town of Pwllheli is located 5.5 miles from the holding and 26 miles from the University city of Bangor.

Amenities
Llithfaen offers a village shop and Post Office services as well as a local public house. The market town of Pwllheli provides a wider range of services including local and national shops and a variety of independent public houses and restaurants.

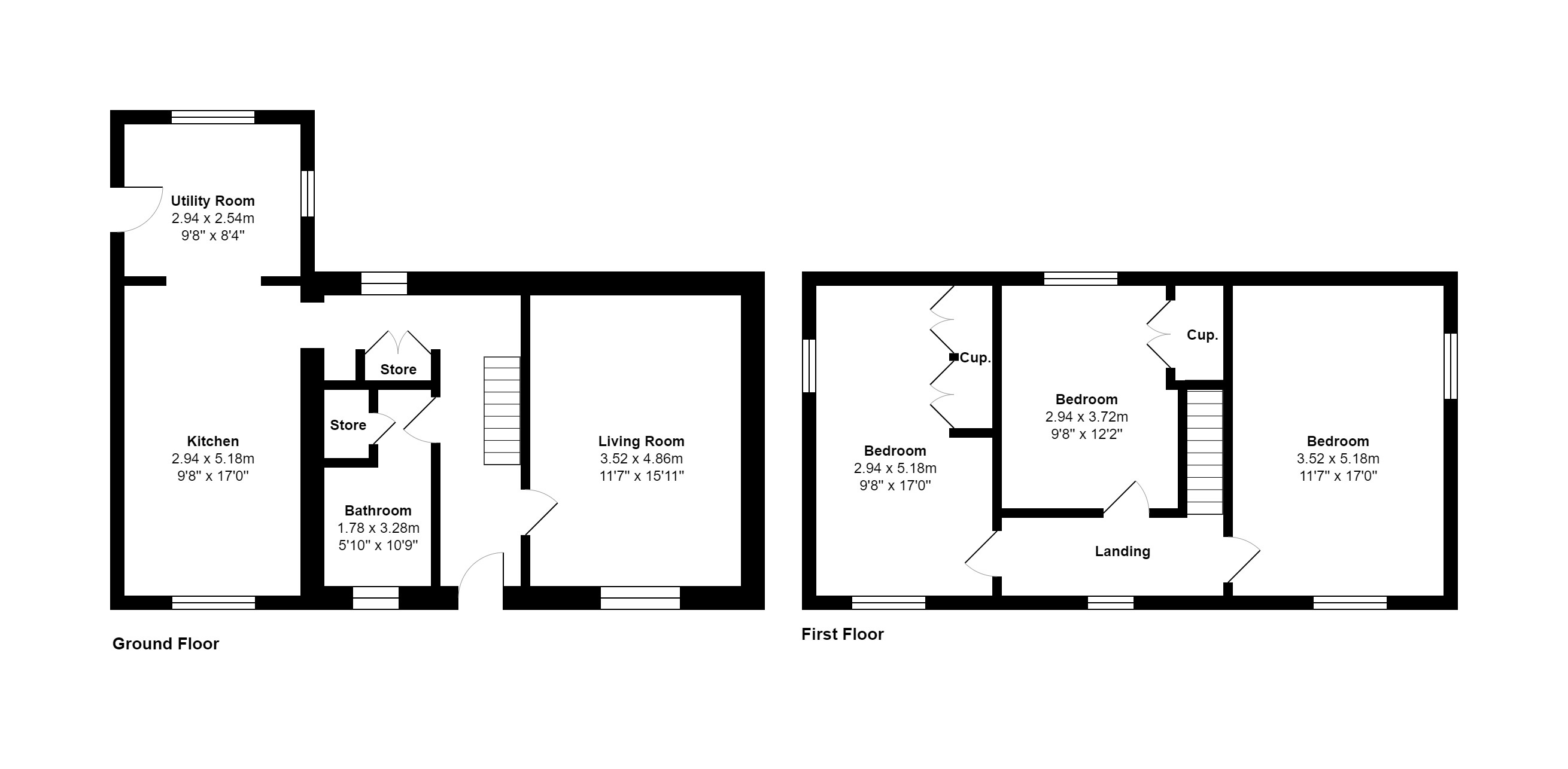
Farmhouse
Rhydau Gloewon farmhouse is a traditional Welsh farmhouse under a slate roof in a peaceful rural situation.

The farmhouse has recently undergone a substantial renovation with new external render, new UPVC double glazing and a newly constructed rear porch. In addition, the property benefits from a newly fitted oil fired central heating system and electrical fit out.

The property offers ground floor accommodation extending to the rear porch extension which works as an entrance hall, a kitchen, living room and a downstairs bathroom. On the first floor there are three good sized bedrooms.

Internally the accommodation offers the opportunity to purchase a blank canvas for any new owner to transform into their preferred style.

Externally there is a lawned area which is perfect for outside living from which pleasant countryside views can be enjoyed.

Buildings
To the rear of the farmhouse is a traditional stone barn under a slate roof. In addition, there is a small brick built barn under a corrugated sheet roof.

The buildings provide useful accommodation that can be used for a variety of agricultural and amenity uses.

The traditional stone outbuilding adjacent to the farmhouse offers a renovation opportunity subject to securing the requisite planning permission.

Land
The farmland extends to approximately 24 acres, being a mixture of permanent grassland suitable for grazing and cropping along with some areas of low lying pasture.

The farmland is split into a number of different parcels with the best grazing ground being located around the farmstead and adjacent to the access track.

The lower lying land is located along the southern boundary of the holding and is comprised of wetter pasture with areas of rush.

Method of Sale
The property is offered for sale by private treaty as a whole.

Tenure & Possession
The freehold of the property is offered for sale with vacant possession.

Basic Payment Scheme
The holding is registered by Rural Payment Wales. No Basic Payment Scheme Entitlements are included with the sale however may be available to purchase by separate negotiation.

More detailed information is available from the selling agent, however, it is advised that all purchasers take independent advice.

Wayleaves, Easements & Rights of Way
The property will be sold subject to and with the benefit of all wayleaves, easements and rights of way, whether mentioned in these particulars or not.

Health & Safety
Given the potential hazards of a livestock farm, we would ask you to be as vigilant as possible when making your inspection, for your own personal safety.

EPC Rating
Rhydau Gloewon farmhouse has an EPC rating of E(41).

Local Authority
Cyngor Gwynedd Council
www.gwynedd.llyw.cymru

Viewings
Strictly by confirmed appointment with the Vendor’s Agent Carter Jonas 01248 360414

Directions
From the village of Llanalhaearn follow the B4417 in the direction of Nefyn. Follow this for approximately 1.5 miles until it is possible to take a left turn before the village of Llithfaen. Follow this minor country road for approximately 1.5 miles until the entrance to Rhydau Gloewon is located on your left. Follow the private track for 0.25 miles until you arrive at the farmstead.

What3Words
/// timed.having.character

The next steps...

Before making an offer on a property you will want to consider your financial situation, your income and outgoings.

Will you finance the purchase of your next property from the sale of an existing property which can put you in a chain, arrange a mortgage through your bank or buy the property outright.

To help you finance your next property purchase, we have a long established relationship with an independent mortgage broker who can discuss your situation with you.

Remember that having a 'mortgage decision in principle' can make you a more attractive buyer when you make an offer on a property. Contact our mortgage advisers for free, no obligation and impartial advice.

Some advantages of a broker are:

  • They do all the legwork for you, working on your behalf with the lender
  • They compare wholesale mortgage rates from a large number of banks and lenders all at once
  • Their wholesale interest rates can be lower than retail (bank branch) interest rates
  • They offer more loan options because they work with numerous banks and lenders
  • They can finance tricky deals because of their knowledge and various lending partners
  • They are typically easier to get in contact with, and are less bureaucratic.

However advantages of working with your bank are:

  • You may be able to build off an existing relationship (and gain discounts if you have a checking or savings account)
  • You may already know the banker who will handle your mortgage
  • Banks may be more accountable than a smaller shop
  • They may offer lower interest rates in some cases
  • Their ability to add mortgage to existing banking profile and make automatic payments from linked account.

When you see a property you are interested in on our website, call us 24/7 to arrange a viewing. Or if you prefer, get in touch via our website and we will call you back to find a time to view the property that suits you.

Once you’ve found a property you want to buy, it’s time to make an offer. A bit of negotiation is to be expected, however don't offer so little that you end up in a lengthy negotiation process, as you might lose the property altogether if someone else makes a higher bid.

If other offers have been made on a property we aren't legally able to tell you what they are, but we may indicate if they were close to the asking price.

If you have a property to sell, why not see how we can help you.

Or if you’re considering letting your property, we can take the stress out of managing your rental, and our award winning lettings team offer a service that can be tailored to your needs.

Combined with nearly 170 years of experience and one of the highest customer satisfaction scores in the industry, Carter Jonas is the perfect property partner.

Why not book a free, no obligation valuation of your property and find out how Carter Jonas can help you make your next move.

Key property details
Additional attributes
Outbuildings Garden Land/Paddock
Locality
Rural
Property type
Detached Farm
Total land
24.6 acres (10 hectares)
Carter Jonas reference
BAN240013

Suggested properties

Here are a few properties you might like, but within 2 extra miles of your current search

Guide price £395,000 38.1 acres (15.4 hectares)
Agricultural
Guide price £2,240,000 180 acres (72.8 hectares)
Agricultural
Guide price £550,000 6 acres (2.4 hectares)
Agricultural
Guide price £4,000,000 265 acres (107.2 hectares)
Agricultural
Asking price £10,900,000 901 acres (364.6 hectares)
Agricultural
Guide price £575,000 47.7 acres (19.3 hectares)
Agricultural
Guide price £895,000 26.7 acres (10.8 hectares)
Agricultural
Asking price £750,000 329 acres (133.1 hectares)
Agricultural
Thinking of selling?

Find out what your property is worth