Elderfield Place, Heritage Park/Tooting Bec SW17

Elderfield Place, Heritage Park/Tooting Bec SW17

5 Bedroom | Freehold | 4 Baths

Guide price £900,000
Hurley Court 0.5 miles
Lynwood Road (Stop P) 0.6 miles
Tooting Bec 0.6 miles

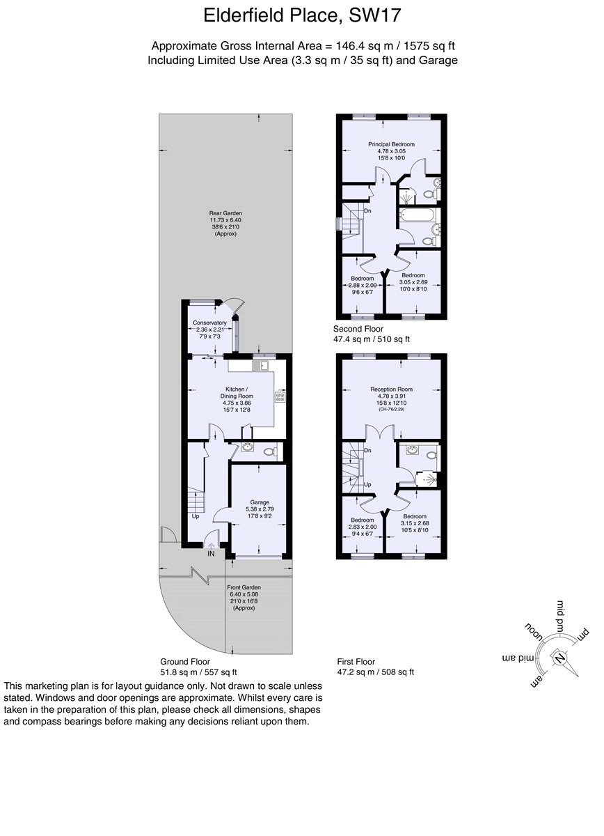
A bright, five-bedroom, end of terrace townhouse, c. 1,575 sq. ft, with excellent eco-credentials, situated in a private development, with off street parking, close to Tooting Bec Common.

A bright, five-bedroom, end of terrace townhouse, c. 1,575 sq. ft, with excellent eco-credentials, situated in a private development, with off street parking, close to Tooting Bec Common.

The house is set over three storeys and offers practical accommodation with a spacious kitchen/diner and an adjoining garden room/conservatory, leading out to the c. 38 ft garden, which enjoys a sunny southerly aspect and secure side access. The kitchen/diner could be extended, subject to the necessary permissions. Back inside, a guest W.C. is located just off the hallway, as is the garage which is currently used as a spacious utility room and storage area, and with its original garage door at the front of the house, can be used for storing bikes/a cargo bike. This room could also be remodelled to become either a cinema room or study. To the front of the house, a private driveway provides off-street parking.

On the first floor, a bright and spacious living room, overlooks the garden and benefits from engineered oak flooring, which extends throughout the property. There is also a shower room and two bright bedrooms which could be combined to create a larger bedroom. On the second floor, the principal suite has an ensuite shower room and views over the garden. Two further bedrooms to the front of the house and a bathroom complete the accommodation.

The house has excellent eco-credentials, with energy consumption almost half of standard consumption for a house of this size. Eco features include: solar panel (owned outright); a Tesla house battery which can be charged from the solar panels or grid during off-peak periods; smart water tank (mixergy co uk) programmable via an app to heat water from the solar panels, grid, combi boiler or a heat pump. The existing gas combi boiler could easily be substituted for a heat pump thanks to the end of the terrace aspect of the house.

The landscaped gardens, parking and communal areas of Heritage Park are well-maintained and benefit from two onsite caretakers and a night-time security guard. The Heritage Park development is located moments from Tooting Bec Common with its leisure amenities including Tooting Bec Lido, the largest open air swimming pool in the UK, Tooting Bec Athletics Track and tennis courts.

Nearby Tooting Bec Station on the Norther line (Zone 3), just 0.7 miles away, provides a short and direct commute into the City of London and the West End while plentiful bus routes offer frequent and additional travel options.

The next steps...

Before making an offer on a property you will want to consider your financial situation, your income and outgoings.

Will you finance the purchase of your next property from the sale of an existing property which can put you in a chain, arrange a mortgage through your bank or buy the property outright.

To help you finance your next property purchase, we have a long established relationship with an independent mortgage broker who can discuss your situation with you.

Remember that having a 'mortgage decision in principle' can make you a more attractive buyer when you make an offer on a property. Contact our mortgage advisers for free, no obligation and impartial advice.

Some advantages of a broker are:

  • They do all the legwork for you, working on your behalf with the lender
  • They compare wholesale mortgage rates from a large number of banks and lenders all at once
  • Their wholesale interest rates can be lower than retail (bank branch) interest rates
  • They offer more loan options because they work with numerous banks and lenders
  • They can finance tricky deals because of their knowledge and various lending partners
  • They are typically easier to get in contact with, and are less bureaucratic.

However advantages of working with your bank are:

  • You may be able to build off an existing relationship (and gain discounts if you have a checking or savings account)
  • You may already know the banker who will handle your mortgage
  • Banks may be more accountable than a smaller shop
  • They may offer lower interest rates in some cases
  • Their ability to add mortgage to existing banking profile and make automatic payments from linked account.

When you see a property you are interested in on our website, call us 24/7 to arrange a viewing. Or if you prefer, get in touch via our website and we will call you back to find a time to view the property that suits you.

Once you’ve found a property you want to buy, it’s time to make an offer. A bit of negotiation is to be expected, however don't offer so little that you end up in a lengthy negotiation process, as you might lose the property altogether if someone else makes a higher bid.

If other offers have been made on a property we aren't legally able to tell you what they are, but we may indicate if they were close to the asking price.

If you have a property to sell, why not see how we can help you.

Or if you’re considering letting your property, we can take the stress out of managing your rental, and our award winning lettings team offer a service that can be tailored to your needs.

Combined with nearly 170 years of experience and one of the highest customer satisfaction scores in the industry, Carter Jonas is the perfect property partner.

Why not book a free, no obligation valuation of your property and find out how Carter Jonas can help you make your next move.

Key property details
Property attributes
End of Terrace
Era
Modern
Parking available
Garage
Additional attributes
Garden
Tenure
Freehold
Energy efficiency rating
C
Environment impact rating
C
Total sq ft
1,575 (146.3 Sq M) approx.
Carter Jonas reference
WNS240066

Suggested properties

Here are a few properties you might like, but within 2 extra miles of your current search

Asking price £3,300,000
5 bedroom house
Asking price £325,000
1 bedroom flat
Asking price £750,000
2 bedroom house
Asking price £650,000
2 bedroom flat
Asking price £3,950,000
4 bedroom flat
Asking price £3,650,000
4 bedroom flat
Asking price £900,000
2 bedroom cottage
Asking price £800,000
2 bedroom flat
Asking price £825,000
2 bedroom flat
Asking price £825,000
2 bedroom flat
Asking price £1,550,000
1 bedroom flat
Asking price £3,150,000
3 bedroom house
Thinking of selling?

Find out what your property is worth