Eastcliff Road, Shanklin PO37

Eastcliff Road, Shanklin PO37

5 Bedroom | Freehold | Character Property

Guide price £895,000
Shanklin 0.5 miles
Lake 1.5 miles
Sandown 2.2 miles

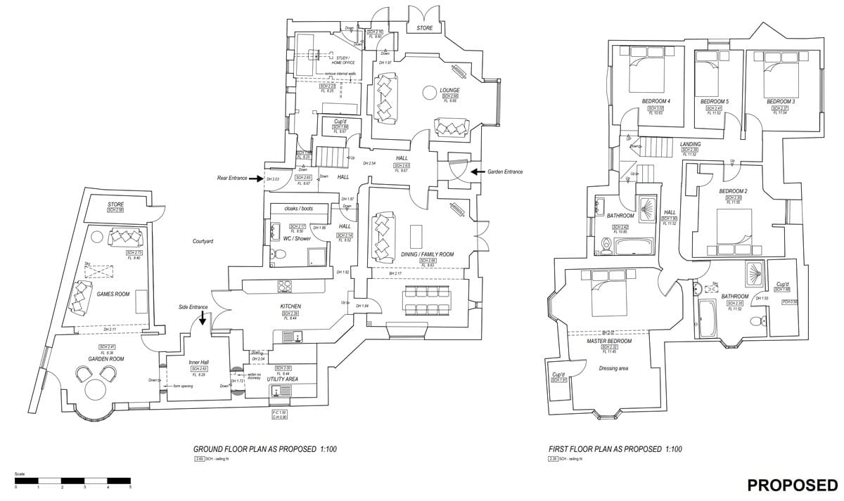
A beautiful thatched cottage currently operating as a tea room, with full planning consent granted for conversion to residential use.

If your dream is to change your lifestyle then look no further than enchanting Vernon Cottage at the top of lovely Old Shanklin Village on the stunning Isle of Wight.

One of the finest examples of ‘Cottage Orne’, Grade II Listed Vernon Cottage was built in 1817 as a private residence with an attractive thatched roof, arched windows and doors and decorative elevations with barge boards. Internally the property is light and airy with high ceilings, leaded light windows throughout, stained glass insets and ornate period fireplaces. Set within large sunny South and West facing gardens with fabulous views, Vernon Cottage is just 0.4 miles walk to the impressive Shanklin Beach which won Countryfile Magazine ‘Beach of the Year Award’. The spacious, elegant and restored downstairs rooms overlooking the gardens and hills beyond and are currently used as a successful, Award-winning tearoom, tavern, restaurant and gift shop. Upstairs is currently arranged as a large four bedroomed apartment with a recently fitted characterful bespoke kitchen with granite worktops and a stylish bathroom plus a lovely large lounge with two leaded light windows.

With Full Planning Consent to become a totally Private Residence, it would be straightforward to convert the existing layout of Vernon Cottage into a spacious 5 bedroom residential home with four reception rooms including a generous dining/family room, sitting room, study/home office and a garden/games room, plus a large domestic kitchen, utility and boot room with shower. Upstairs, the substantial lounge would become the principal bedroom complete with dressing area and an ensuite bathroom, in addition to the already existing four bedrooms (3 doubles and 1 single) and the newly refitted family bathroom.

This unique property offers the new owners an exceptional opportunity for the entire property to become a Private House or a mix of private and commercial if wished. The full private residential planning permission is valid until October 2026.

Vernon Cottage is currently run as a profitable Summer Season business with an impressive clutch of Awards and turnover, which allows the owners their preferred lifestyle choice. If a continuing commercial element is desired, the new owners can choose the times/months they wish to open with plenty of opportunity for further expansion and development. The ‘Beautiful South’ Award winning Gift Shop and Tourist Information lends itself a huge variety of separate business ideas, even a local art gallery, and it also has an alcohol licence.

OUTSIDE
The delightful sunny gardens feature well stocked beds and mature planting, private areas with garden arbours, extensive lawns, terraces and two ponds plus eye-catching wrought iron Penny Farthing bicycle stands designed by the current owners. The gardens have been awarded ‘Best Commercial Garden on the IOW’ and can easily seat 170 people. One of the entrances has a double garage and driveway with additional parking and side garden.

LOCATION
Vernon Cottage sits at the top of the picturesque Old Shanklin Village with its picture postcard thatched cottages, independent shops, restaurants, quaint pubs and the excellent Shanklin Theatre. It frequently wins the accolade of ‘sunniest place in the UK’ and Shanklin Beach with its stunning views and golden sand is the perfect place for the whole family. Shanklin Rowing Club holds an annual Regatta and there is also an excellent Golf Club, Cricket Club, Rugby Club and Leisure Centre nearby. There are fabulous coastal and countryside walks from the Village and over 200 miles of cycle ways. The Island has a huge variety of attractions and events from Queen Victoria’s Osbourne House to the Isle of Wight Festival in June and Cowes Week in August, one of the oldest and most respected regattas in the world.

Shanklin is directly linked by the only railway line on the Island to Ryde Pier Head and the FastCat passenger ferry to Portsmouth with direct trains to London. Total journey time only two and a half hours. There are good local nurseries and primary schools, and the private Ryde School with Upper Chine (2-18 years) is within easy reach.

ADDITIONAL INFORMATION
Tenure: Freehold.
Services: Mains water, electricity, gas and drainage. Gas central heating.
Fibre to the Cabinet (FTTC). For internet and mobile services check Ofcom’s website.
Local Authority: Isle of Wight. Council Tax Band D.
Viewing: Strictly by appointment through the agent.
Agent's Note: Full details of planning consent and proposed plans are available on request.

The next steps...

Before making an offer on a property you will want to consider your financial situation, your income and outgoings.

Will you finance the purchase of your next property from the sale of an existing property which can put you in a chain, arrange a mortgage through your bank or buy the property outright.

To help you finance your next property purchase, we have a long established relationship with an independent mortgage broker who can discuss your situation with you.

Remember that having a 'mortgage decision in principle' can make you a more attractive buyer when you make an offer on a property. Contact our mortgage advisers for free, no obligation and impartial advice.

Some advantages of a broker are:

  • They do all the legwork for you, working on your behalf with the lender
  • They compare wholesale mortgage rates from a large number of banks and lenders all at once
  • Their wholesale interest rates can be lower than retail (bank branch) interest rates
  • They offer more loan options because they work with numerous banks and lenders
  • They can finance tricky deals because of their knowledge and various lending partners
  • They are typically easier to get in contact with, and are less bureaucratic.

However advantages of working with your bank are:

  • You may be able to build off an existing relationship (and gain discounts if you have a checking or savings account)
  • You may already know the banker who will handle your mortgage
  • Banks may be more accountable than a smaller shop
  • They may offer lower interest rates in some cases
  • Their ability to add mortgage to existing banking profile and make automatic payments from linked account.

When you see a property you are interested in on our website, call us 24/7 to arrange a viewing. Or if you prefer, get in touch via our website and we will call you back to find a time to view the property that suits you.

Once you’ve found a property you want to buy, it’s time to make an offer. A bit of negotiation is to be expected, however don't offer so little that you end up in a lengthy negotiation process, as you might lose the property altogether if someone else makes a higher bid.

If other offers have been made on a property we aren't legally able to tell you what they are, but we may indicate if they were close to the asking price.

If you have a property to sell, why not see how we can help you.

Or if you’re considering letting your property, we can take the stress out of managing your rental, and our award winning lettings team offer a service that can be tailored to your needs.

Combined with nearly 170 years of experience and one of the highest customer satisfaction scores in the industry, Carter Jonas is the perfect property partner.

Why not book a free, no obligation valuation of your property and find out how Carter Jonas can help you make your next move.

Key property details
Property attributes
Detached
Era
Period
Parking available
Off Street Parking Garage
Additional attributes
Character Property Garden
Locality
Village
Tenure
Freehold
Energy efficiency rating
D
Total sq ft
2,731 (253.7 Sq M) approx.
Carter Jonas reference
WIN240014
Thinking of selling?

Find out what your property is worth