Bourton, Much Wenlock TF13

Bourton, Much Wenlock TF13

4 Bedroom | 3 Baths

£1,750 per month £404 per week
New Road Jct 2.9 miles

A recently converted four-bedroom barn conversion in the rural village of Bourton, just 3 miles from the market town of Much Wenlock.

A recently converted four-bedroom barn conversion in the rural village of Bourton, just 3 miles from the market town of Much Wenlock.

This charming barn conversion has been completely renovated to a very high standard with oak flooring, tiling, stunning timber beams throughout and parking for two cars in the courtyard. Entrance to the property is through the landscaped lawned garden into the tiled entrance hall.

Located in South Shropshire on the northern edge of the Corvedale, the property lies two miles to the south-west of the historic market town of Much Wenlock which provides a number of local restaurants, shops and services. Larger towns within commuting distance are: Bridgnorth, 9 miles; Telford, 14 miles; Shrewsbury, 16 miles; Ludlow, 18 miles; Birmingham, 45 miles.

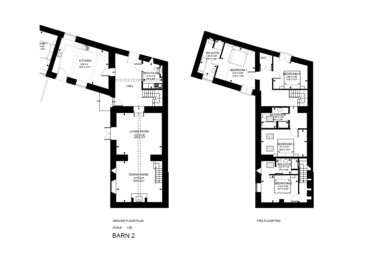
The accommodation comprises of:

Ground Floor
Entrance Hall
With stone tile floor, with doors leading off to the kitchen, living room and utility area/WC.

Kitchen – 5.84 x 4m
With stone tile floor, a newly fitted kitchen with an integrated oven and hob, and space for a fridge/freezer and dishwasher.

Utility Room/WC – 2.2 x 2.9m
With a stone tile floor, toilet, sink and space for a washing machine and tumble dryer.

Living Room – 5.07 x 4.64m
With oak flooring and stairs leading to Bedroom Two.

Dining Room – 5.07 x 4.61m
With oak flooring and French doors that lead onto the patio area.

First Floor (Right Wing)
Bedroom Two – 4.14 x 3.05m
With a carpet floor, and exposed timber beams.

En-Suite – 2.47 x 1.76m
With oak-effect vinyl floor, featuring a new shower, sink, WC and bespoke shelving.

First Floor (Main)
Bedroom One – 4.07 x 4.06m
With a carpet floor, and exposed timber beams.

En-Suite – 1.94 x 4.06m
With oak-effect vinyl, a spacious room with a bath, separate shower, sink and a WC.

Bedroom Three – 5.1 x 3.07m
With a carpet floor, a large spacious room with velux windows.

Bedroom Four – 3.86 x 3.08m
A double bedroom with a carpet floor, and a Juliette balcony.

Bathroom – 3.06 x 2.33m
With oak-effect vinyl flooring, a bathroom with a bath, separate shower, sink and a WC.

Externally, the property has a lawned garden and a patio area that can be accessed from the front door, kitchen, and living room.

Services
- Heating: Air Source Heat Pump
- Mains Water
- Mains Electricity
- Private Sewage (supplied by Private Sewage Treatment Plant – costs are included in the rent)

Rent: £1,750
Deposit: £2,000

EPC - C.
Pets will be considered.

This property will be available to let from the beginning of February 2026.

Viewings are strictly by appointment only. Please contact Carter Jonas Shrewsbury for more information.

The next steps...

There may be some fees payable by the tenant depending on the type of tenancy.

The precise details of the fees can be downloaded directly from the ‘Key Property Details’ section of the property details page.

Viewing a property can be an exciting time, but remember to register with your local office of Carter Jonas first. This could give you access to confidential listings (properties we are requested not to advertise) which you will never see online.

When you see a property you are interested in, get in touch via our website and we will call you back to find a time to view the property that suits you.

When it comes to making an offer on a property a bit of negotiation is to be expected, however don't offer so little that you end up in a lengthy negotiation process, as you might lose the property altogether if someone else makes a higher bid.

If other offers have been made on a property we aren't legally able to tell you what they are, but we may indicate if they were close to the asking price.

To make an offer, simply click on the ‘Make offer’ button at the top of this page, then input your email address so we can send you an offer form for you to complete and send back to us. There is no need to register for an account, and the email includes key information for prospective tenants so you know everything you need to before you make an offer.

Key property details
Era
Modern
Parking available
Residents Parking Off Street Parking
Additional attributes
Garden Patio
Locality
Rural Village
Letting fees
Download Letting Fees
Carter Jonas reference
SYR260001
Thinking of selling?

Find out what your property is worth