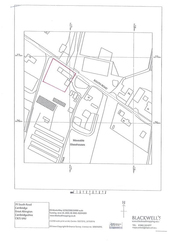
South Road, Abington CB21

South Road, Abington CB21

3 Bedroom | Freehold | 0.014 acres (0.014 hectares)

Guide price £275,000
Whittlesford Parkway 2.4 miles
Great Chesterford 3.2 miles
Shelford 4.7 miles

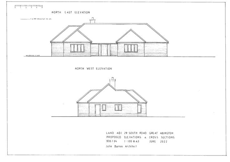
An opportunity to purchase a plot of land situated on the outskirts of this popular Cambridgeshire village, with full planning permission for a self-build 2/3 bedroom detached bungalow.

An exciting opportunity to acquire a generous plot of land with full planning permission granted for a detached twobedroom bungalow, perfectly positioned on the soughtafter South Road in the popular village of Abington.

Set within a peaceful location surrounded by mature trees, the plot offers an excellent chance for those looking to build their own home or take on a small development project. The approved plans allow for a thoughtfully designed singlestorey home featuring:

- Entrance porch
- Living room with bi-fold doors
- Generous kitchen/dining room with bi-fold doors
- Dedicated utility room
- Study
- Generous principal bedroom with en-suite and walk in wardrobe
- Second double bedroom
- Family bathroom

South Road is a quiet, desirable location within Great Abington, known for its strong community feel, charming village setting, and convenient access to the A11, M11, Cambridge Biomedical Campus and central Cambridge. Local amenities include a village store, primary school, recreation ground, and popular countryside walks.

This is a rare chance to create a bespoke modern home in a prime South Cambridgeshire village. Ideal for selfbuilders, downsizers, or those seeking a high-quality single-storey residence in an excellent location.


Planning Reference: 24/00718/FUL (granted 4th June 2024)
Local Authority: Greater Cambridge Shared Planning
Tenure: Freehold
Viewings: By appointment only with agent, Carter Jonas.

The next steps...

Before making an offer on a property you will want to consider your financial situation, your income and outgoings.

Will you finance the purchase of your next property from the sale of an existing property which can put you in a chain, arrange a mortgage through your bank or buy the property outright.

To help you finance your next property purchase, we have a long established relationship with an independent mortgage broker who can discuss your situation with you.

Remember that having a 'mortgage decision in principle' can make you a more attractive buyer when you make an offer on a property. Contact our mortgage advisers for free, no obligation and impartial advice.

Some advantages of a broker are:

  • They do all the legwork for you, working on your behalf with the lender
  • They compare wholesale mortgage rates from a large number of banks and lenders all at once
  • Their wholesale interest rates can be lower than retail (bank branch) interest rates
  • They offer more loan options because they work with numerous banks and lenders
  • They can finance tricky deals because of their knowledge and various lending partners
  • They are typically easier to get in contact with, and are less bureaucratic.

However advantages of working with your bank are:

  • You may be able to build off an existing relationship (and gain discounts if you have a checking or savings account)
  • You may already know the banker who will handle your mortgage
  • Banks may be more accountable than a smaller shop
  • They may offer lower interest rates in some cases
  • Their ability to add mortgage to existing banking profile and make automatic payments from linked account.

When you see a property you are interested in on our website, call us 24/7 to arrange a viewing. Or if you prefer, get in touch via our website and we will call you back to find a time to view the property that suits you.

Once you’ve found a property you want to buy, it’s time to make an offer. A bit of negotiation is to be expected, however don't offer so little that you end up in a lengthy negotiation process, as you might lose the property altogether if someone else makes a higher bid.

If other offers have been made on a property we aren't legally able to tell you what they are, but we may indicate if they were close to the asking price.

If you have a property to sell, why not see how we can help you.

Or if you’re considering letting your property, we can take the stress out of managing your rental, and our award winning lettings team offer a service that can be tailored to your needs.

Combined with nearly 170 years of experience and one of the highest customer satisfaction scores in the industry, Carter Jonas is the perfect property partner.

Why not book a free, no obligation valuation of your property and find out how Carter Jonas can help you make your next move.

Key property details
Parking available
Off Street Parking
Locality
Rural Village
Property type
Detached Land Development Plot
Additional attributes
Garden
Tenure
Freehold
Carter Jonas reference
CNH250140

Suggested properties

Here are a few properties you might like, but within 2 extra miles of your current search

Price on Application 0.3 acres (0.121 hectares)
Agricultural
Asking price £725,000
Agricultural
Asking price £1,400,000 0.21 acres (0.085 hectares)
Agricultural
Thinking of selling?

Find out what your property is worth