Buscot Road, Bradfield Southend RG7

Buscot Road, Bradfield Southend RG7

Outbuildings | 22.4 acres (9.1 hectares)

Guide price £750,000
Aldermaston 2.5 miles
Theale 2.8 miles
Aldermaston Station 2.4 miles

Well located farmyard with extensive range of portal framed buildings, arable land and woodland.

Well located farmyard with extensive range of portal framed buildings, arable land and woodland.

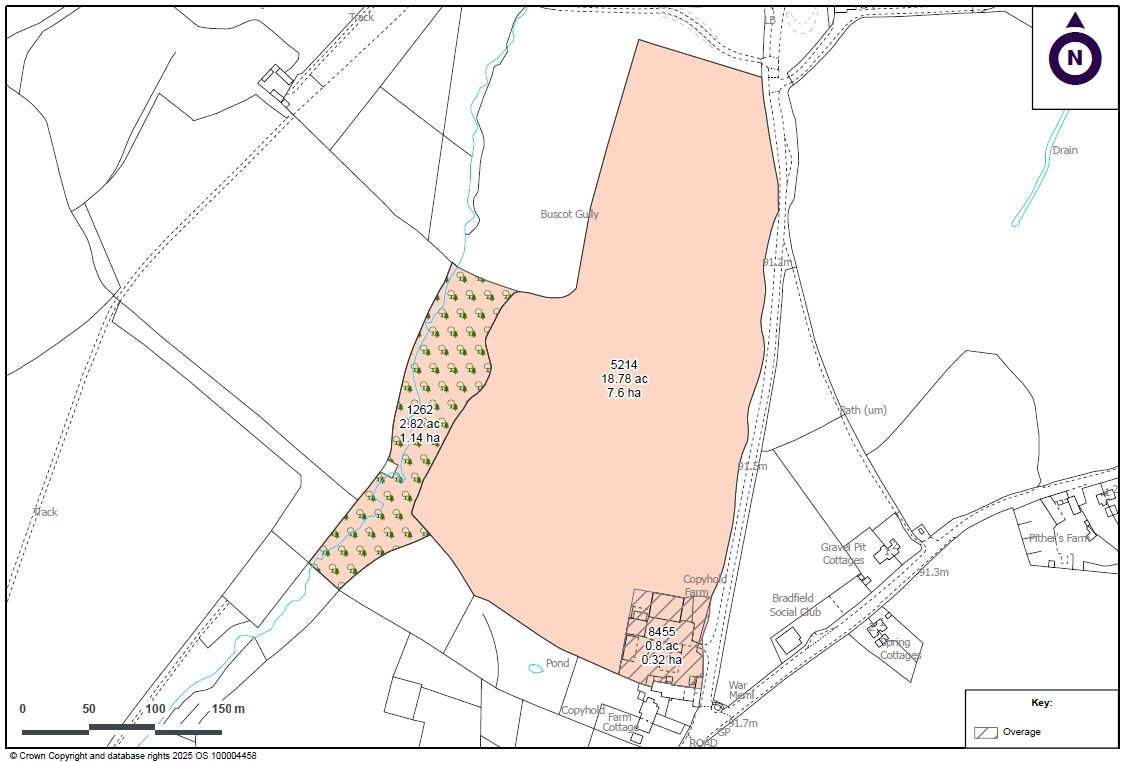
The Land and Buildings at Copyhold Farm comprises an extensive farmyard with a range of mainly portal framed farm buildings on a mainly concrete yard, a singular block of arable land and a parcel of Ancient and Semi Natural woodland.
The property has mains water and electricity connected, benefits from direct road access in 2 places and has potential for a variety of uses, subject to relevant consents.

In all extending to 22.41 acres (9.07 ha).

For sale by private treaty as a whole.

Location
Bradfield Southend is a small village in West Berkshire. It is conveniently located with easy access to Newbury and Reading as well as Pangbourne.

Amenities
Bradfield Southend has an attractive community with a local shop and post office, doctors’ surgery and Church of England Primary School.

Farm Buildings
Situated to the southeast of the land, the concrete farmyard at Copyhold Farm extends to about 0.80 acres (0.32 ha) and contains a useful range of steel portal framed, concrete framed and timber framed buildings totalling circa 12,500 sqft (1,161.71 sqm).

There are 2 vehicular access points from Buscot Road, one to the farmyard itself and one further north.

Key (to Plan)
1 steel portal: 18.64m x 23.71m
2 concrete portal: 11.97m x 13.94m
3 steel portal: 18.63m x 8.74m
4 steel portal lean-to: 23.79m x 5.69m
5 steel portal dutch barn: 23.79m x 8.69m
6 wooden lean-to: 14.32m x 6.64m

Land
The land comprises a single block of easily accessible arable land extending to 18.78 acres (7.6 hectares). The land is a mixture of freely draining slightly acid loamy soils and slowly permeable seasonally wet slightly acid but base rich loamy and clayey soils being grade 3 land suitable for grass or arable cropping.

To the east of the farmland there is a parcel of Ancient and Semi Natural woodland which is accessed via the farmland. It totals 2.82 acres (1.14 hectares).

The boundaries are a mixture of mature hedgerows and trees.

Method of sale
For sale by Private Treaty as a whole albeit subdivisions may be considered.

Tenure & Possession
For sale with the benefit of vacant possession.

Overage
An overage of 30% over 30 years is proposed ‘on the hatched yard area’ from completion for residential and commercial uses only. For the avoidance of doubt non-residential agriculture and equestrian uses do not apply.

Designations
The property is wholly within the North Wessex Downs National Landscape and the Site of Special Scientific Interest Impact Zone for The Kings Copse SSSI.

Services
The property benefits mains water and electricity.

Health & Safety
All viewings are carried out at the risk of the viewer and neither the selling agent nor the vendor takes responsibility.

Planning
Whilst it is anticipated that the property has scope for alternative uses, subject to the necessary consents, purchasers should note that historically the property has been unsuccessful in securing change of use to residential. We would advise reviewing the planning portal.

Sporting Timber & Mineral Rights
The mineral, sporting and timber rights are included in the sale of the freehold in so far that are owned.

Local Authorities
West Berkshire Council
www.westberks.gov.uk

The next steps...

Before making an offer on a property you will want to consider your financial situation, your income and outgoings.

Will you finance the purchase of your next property from the sale of an existing property which can put you in a chain, arrange a mortgage through your bank or buy the property outright.

To help you finance your next property purchase, we have a long established relationship with an independent mortgage broker who can discuss your situation with you.

Remember that having a 'mortgage decision in principle' can make you a more attractive buyer when you make an offer on a property. Contact our mortgage advisers for free, no obligation and impartial advice.

Some advantages of a broker are:

  • They do all the legwork for you, working on your behalf with the lender
  • They compare wholesale mortgage rates from a large number of banks and lenders all at once
  • Their wholesale interest rates can be lower than retail (bank branch) interest rates
  • They offer more loan options because they work with numerous banks and lenders
  • They can finance tricky deals because of their knowledge and various lending partners
  • They are typically easier to get in contact with, and are less bureaucratic.

However advantages of working with your bank are:

  • You may be able to build off an existing relationship (and gain discounts if you have a checking or savings account)
  • You may already know the banker who will handle your mortgage
  • Banks may be more accountable than a smaller shop
  • They may offer lower interest rates in some cases
  • Their ability to add mortgage to existing banking profile and make automatic payments from linked account.

When you see a property you are interested in on our website, call us 24/7 to arrange a viewing. Or if you prefer, get in touch via our website and we will call you back to find a time to view the property that suits you.

Once you’ve found a property you want to buy, it’s time to make an offer. A bit of negotiation is to be expected, however don't offer so little that you end up in a lengthy negotiation process, as you might lose the property altogether if someone else makes a higher bid.

If other offers have been made on a property we aren't legally able to tell you what they are, but we may indicate if they were close to the asking price.

If you have a property to sell, why not see how we can help you.

Or if you’re considering letting your property, we can take the stress out of managing your rental, and our award winning lettings team offer a service that can be tailored to your needs.

Combined with nearly 170 years of experience and one of the highest customer satisfaction scores in the industry, Carter Jonas is the perfect property partner.

Why not book a free, no obligation valuation of your property and find out how Carter Jonas can help you make your next move.

Key property details
Additional attributes
Outbuildings
Locality
Rural
Property type
Land Farm
Total land
22.4 acres (9.1 hectares)
Carter Jonas reference
NWR250014

Suggested properties

Here are a few properties you might like, but within 2 extra miles of your current search

Guide price £1,600,000 3.2 acres (1.3 hectares)
Agricultural
Guide price £400,000
Agricultural
Offers in excess of £475,000 77.2 acres (31.2 hectares)
Agricultural
Thinking of selling?

Find out what your property is worth