Wootton Rivers, Marlborough SN8

Wootton Rivers, Marlborough SN8

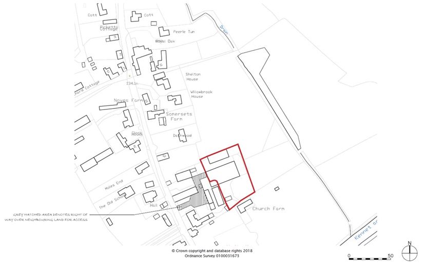
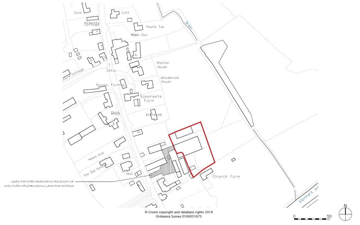
Freehold | 1.3 acres (0.506 hectares)

Guide price £1,300,000
Pewsey 2.8 miles
Post Office 2.4 miles
Station Approach 2.7 miles

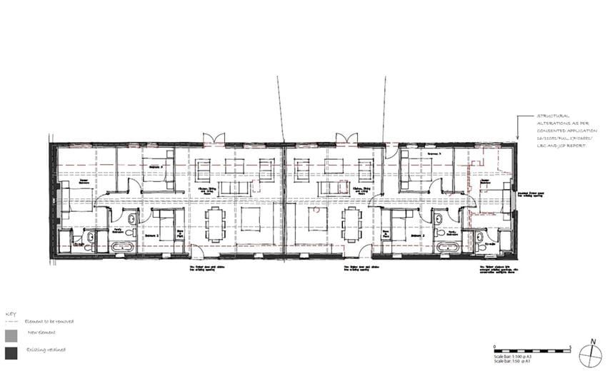
A development site with approved planning permission for seven dwellings in this prime village just outside of Marlborough.

Description

A 1.25 acre site with approved planning permission to build seven residential homes in this prime Wiltshire village just outside of Marlborough.

The site is on two separate titles with separate planning permissions granted for each.

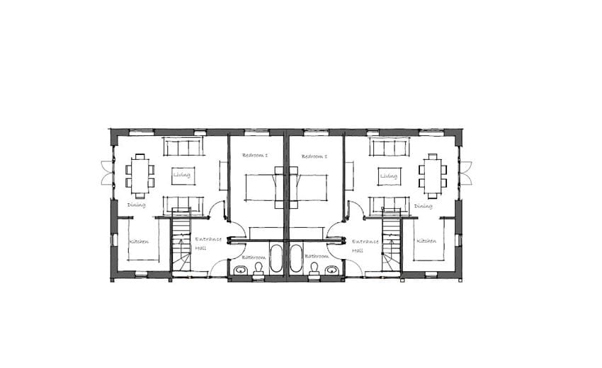
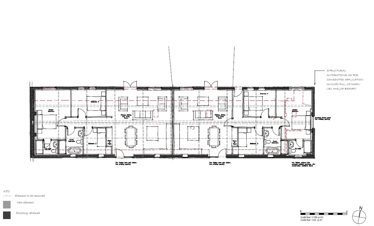
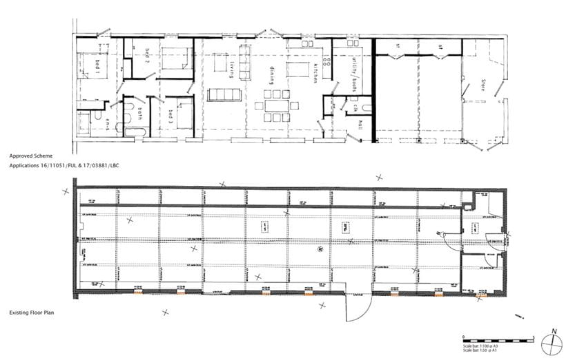
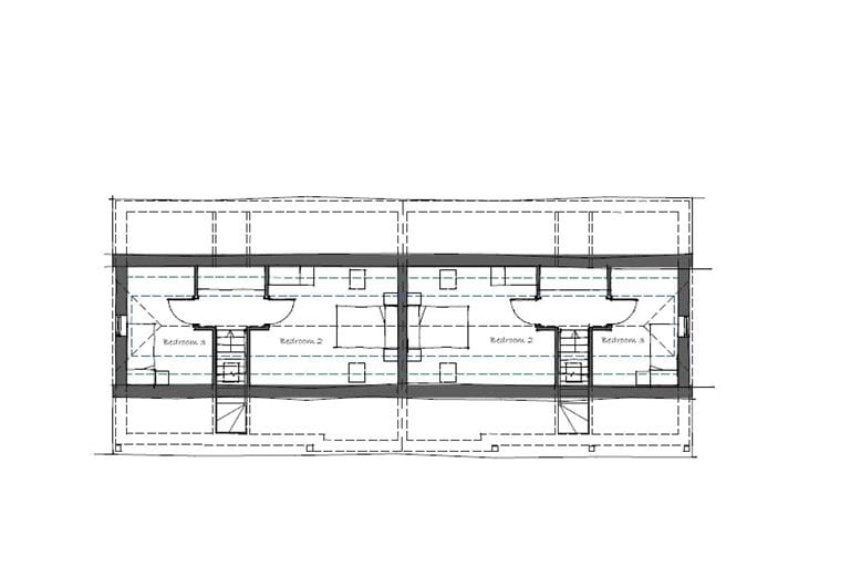
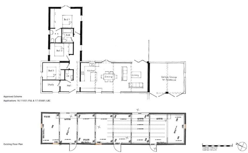
Planning reference 19/04526/FUL has approved planning permission for the demolition of agricultural buildings, conversion of 2 barns, replacement of 1 barn to form 6 dwellings. Demolition and alterations to walls. Formation of new access with car parking and associated landscaping. Alterations to the scheme approved under applications 16/11051/FUL and 17/03881/LBC.

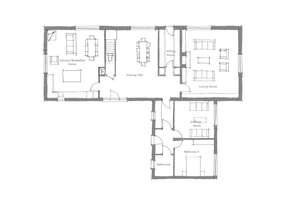
Planning reference 19/11140/FUL has approved planning permission for the erection of a 5 bed, two storey dwelling (alterations to an existing consent for a 5 bedroom, two storey dwelling under applications 16/11051/FUL and 17/03881/LBC formerly known as Plot 3, now renamed as Plot 7).

A material start has been completed and confirmed by Wiltshire Council.

Please note site visits are strictly by appointment only.

Situation

Wootton Rivers is just a few miles from the lovely market town of Marlborough and village of Pewsey. It is a beautiful and unspoilt village tucked away in a wonderful setting amidst the gently rolling hills and open farmland of the Vale of Pewsey. Dating back many hundreds of years, the village exhibits many of the best architectural features of this area, with flint and thatch very much prevalent. It feels a world away from the hustle and bustle of modern life, yet it offers the best of both worlds - secluded and peaceful while being quickly accessible to excellent schools, a wide range of shops, and commuting via road and rail. The Kennet and Avon canal runs through the village and there is a popular village pub, The Royal Oak, village hall, ancient church and there are few settings in this area more lovely.

The vibrant market town of Marlborough lies c6 miles to the north and Pewsey, with mainline train services to London Paddington, c3 miles to the south-west.

The next steps...

Before making an offer on a property you will want to consider your financial situation, your income and outgoings.

Will you finance the purchase of your next property from the sale of an existing property which can put you in a chain, arrange a mortgage through your bank or buy the property outright.

To help you finance your next property purchase, we have a long established relationship with an independent mortgage broker who can discuss your situation with you.

Remember that having a 'mortgage decision in principle' can make you a more attractive buyer when you make an offer on a property. Contact our mortgage advisers for free, no obligation and impartial advice.

Some advantages of a broker are:

  • They do all the legwork for you, working on your behalf with the lender
  • They compare wholesale mortgage rates from a large number of banks and lenders all at once
  • Their wholesale interest rates can be lower than retail (bank branch) interest rates
  • They offer more loan options because they work with numerous banks and lenders
  • They can finance tricky deals because of their knowledge and various lending partners
  • They are typically easier to get in contact with, and are less bureaucratic.

However advantages of working with your bank are:

  • You may be able to build off an existing relationship (and gain discounts if you have a checking or savings account)
  • You may already know the banker who will handle your mortgage
  • Banks may be more accountable than a smaller shop
  • They may offer lower interest rates in some cases
  • Their ability to add mortgage to existing banking profile and make automatic payments from linked account.

When you see a property you are interested in on our website, call us 24/7 to arrange a viewing. Or if you prefer, get in touch via our website and we will call you back to find a time to view the property that suits you.

Once you’ve found a property you want to buy, it’s time to make an offer. A bit of negotiation is to be expected, however don't offer so little that you end up in a lengthy negotiation process, as you might lose the property altogether if someone else makes a higher bid.

If other offers have been made on a property we aren't legally able to tell you what they are, but we may indicate if they were close to the asking price.

If you have a property to sell, why not see how we can help you.

Or if you’re considering letting your property, we can take the stress out of managing your rental, and our award winning lettings team offer a service that can be tailored to your needs.

Combined with nearly 170 years of experience and one of the highest customer satisfaction scores in the industry, Carter Jonas is the perfect property partner.

Why not book a free, no obligation valuation of your property and find out how Carter Jonas can help you make your next move.

Key property details
Locality
Village
Property type
Land Development Plot
Tenure
Freehold
Total land
1.3 acres (0.506 hectares)
Carter Jonas reference
MAR250180
Thinking of selling?

Find out what your property is worth